Insulated Roller Shutters

Thermal Protection and Security in One Seamless System

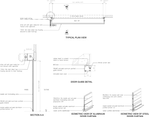
Gliderol® Insulated Roller Shutters combine thermal efficiency, acoustic insulation, and structural durability in one premium package. With U-values as low as 2.95 W/m²°C, these shutters are ideal for cold storage, food distribution, and temperature-controlled manufacturing.

Variants:

  • Steel: 80mm x 20mm double-wall slats with ceramic fibre infill
  • Aluminium: 100mm x 23mm slats with EPS or ceramic fibre infill

Specifications:

  • High-performance U-values (Steel: 3.25 / Aluminium: 2.95)
  • Heavy-duty aluminium guide channels (100mm x 90mm)
  • Pneumatic bottom safety edge option
  • Rubber-sealed operation for insulation and noise reduction

Applications: Cold rooms, logistics depots, pharmaceutical, refrigerated areas

Learn More

Would you like to know more about Insulated Roller Shutters?

Then contact our friendly and experience team for advice on the ideal product for your needs.

 
CONTACT US

Need help from our specialists?

Let’s discuss the best solution for you. Use the form below or don’t hesitate to give us a call on 1800 453 378.