Storm Shutters (Cyclone Rated)

Tested to Survive Cyclones — Designed to Protect Assets

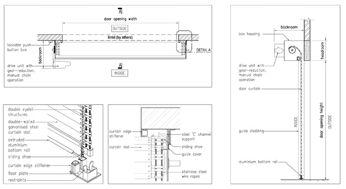
Gliderol® Storm Shutters feature a patented anchored lattice design to resist wind speeds exceeding 200 km/h without relying on building jambs. Perfect for cyclone zones and exposed locations, they are tested to ASTM E330 standards for 2.5kPa pressures.

Unique System:

  • Double-walled slats with internal steel rods and eyelets
  • Vertical cables anchor to floor restraints via steel shoes
  • Transfers wind load to the ground, not the wall
  • Self-supporting steel goalpost structure

Applications: Coastal infrastructure, critical services, cyclone zones

Would you like to know more about Storm Shutters (Cyclone Rated)?

Then contact our friendly and experience team for advice on the ideal product for your needs.

 
CONTACT US

Need help from our specialists?

Let’s discuss the best solution for you. Use the form below or don’t hesitate to give us a call on 1800 453 378.